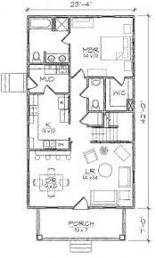
10+ Tiny house plans for narrow lots ideas