Your Poultry house designs plans pdf images are available in this site. Poultry house designs plans pdf are a topic that is being searched for and liked by netizens now. You can Find and Download the Poultry house designs plans pdf files here. Download all free vectors in sini. Poultry house designs plans pdf was described holistic and detail.
If you’re searching for poultry house designs plans pdf pictures information linked to the poultry house designs plans pdf topic, you have pay a visit to the ideal blog. Our website frequently provides you with hints for viewing the highest quality video and image content, please kindly hunt and find more informative video articles and graphics that match your interests.
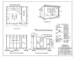
Poultry House Designs Plans Pdf. These free chicken coop plans are perfect if you want to build a hen house that allows you to gather the eggs feed and water the chicken without breaking a sweat. 05112017 Design Of Poultry House In The Philippines - Have home dream of perhaps is one of ideals largest for your every couple. Poultry which is raised for egg production are known as layer poultry. Mick Telkamp for INSTRUCTION MANUAL Detailed plans and instructions to start building your custom coop today. Microsoft Word Project Report For Setting Up Of 1000 Broilers Farm With M 205 Pdf In 2021 Poultry House Chicken House Poultry Farm Design from www.pinterest.com
Images information:
Dimensions: 233 x 400
File type: jpg
A layer poultry house is a structure used for growing of layers. However few plans for small poultry houses are available. Length of house 500ft Width of house 40ft Height of house 18ft 9ft for each storey Capacity. See more ideas about poultry poultry farm poultry house. About 12 to 14 inches square about 12 inches high and a lip of about 4 inches at the door to prevent litter from escaping or spilling out. Design of Broiler House.
A layer poultry house is a structure used for growing of layers.
See more ideas about poultry poultry farm poultry house. A layer poultry house is a structure used for growing of layers. 40ft 500ft 20000ft2 So total number of broiler that can be place in the house. The designs of the poultry house for hens or broilers in some countries dose not always establish on engineering and scientific foundation but on some incorrect information and practices or lack. Choose the ideal site for your poultry house. We have 8 Plymouth Barred Rocks and I cant wait till we get the coop done so we can put our girls out in their new home. Except when otherwise noted the use of the term poultry. 1 nest for every 4 to 5 hens. The coop will house 10 chickens easily. Proper planning of housing facilities for a flock of layer chickens requires knowledge of environmental requirements during various stages of growth typical cycle in Fig. 08 ft2 per broiler Area of layer house.
This site is an open community for users to share their favorite wallpapers on the internet, all images or pictures in this site are for personal wallpaper use only, it is stricly prohibited to use this wallpaper for commercial purposes, if you are the author and find this image is shared without your permission, please kindly raise a DMCA report Contact Us.
If you find this site convienient, please support us by sharing this posts to your preference social media accounts like Facebook, Instagram and so on or you can also bookmark this blog page with the title poultry house designs plans pdf by using Ctrl + D for devices a laptop with a Windows operating system or Command + D for laptops with an Apple operating system. If you use a smartphone, you can also use the drawer menu of the browser you are using. Whether it's a Windows, Mac, iOS or Android operating system, you will still be able to bookmark this website.