28+ Metal building house plans 3 bedroom ideas in 2021
28+ Metal building house plans 3 bedroom ideas in 2021
Metal Building House Plans 3 Bedroom
Your Metal building house plans 3 bedroom images 4K are ready. Metal building house plans 3 bedroom are a topic that is being searched for and liked by netizens now. You can Get the Metal building house plans 3 bedroom files here. Download all free photos and vectors in sini. Metal building house plans 3 bedroom was reported holistic and image item.
If you’re looking for metal building house plans 3 bedroom pictures information linked to the metal building house plans 3 bedroom topic, you have pay a visit to the right blog. Our website always provides you with suggestions for seeing the maximum quality video and picture content, please kindly surf and locate more informative video content and images that match your interests.
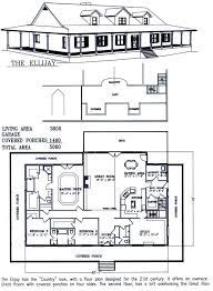
Metal Building House Plans 3 Bedroom. 3 bedroom ranch house open floor plans three bedroom two bath ranch. 3 bedroom house with pool 3 bedroom house floor plans. Garage HQ Plans. See more ideas about floor plans house floor plans house plans. 3 Beast Metal Building Barndominium Floor Plans And Design Ideas For You Barndominium Bar Barndominium Floor Plans House Plan With Loft House Floor Plans from www.pinterest.com
Images information:
Dimensions: 392 x 706
File type: png
Unassembled Primary and Secondary Materials Manufacturer Standard 26 ga Hi-Rib Wall and Roof Sheeting Proprietary Siphon Groove Technology on Sheeting Standard Paint Warranty Complete Closure and Trim Package Gutters and DownspoutsFramed OpeningsEngineered Certified Drawings Porch Bracing. 12022017 Beautiful Dutch Saltbox Home w 3 Bedrooms 20 HQ Pictures. From barndominiums to steel-framed modular homes this is the place to browse if youre looking into untraditional. Search By Architectural Style Square Footage Home Features. Dec 22 2020 - Explore Adrian Wards board Metal Building Floor Plans followed by 143 people on Pinterest. Metal Building Home Interior Turned into Homes Metal Buildings Residential Metal Buildings Homes.
Pics-Advertisements-in Floor Plans Metal Buildings.
Find 1-2 story metal-framed building blueprints barn style homes. 18042017 32 Barndominium Floor Plans 1 Bed 1 Bath. From barndominiums to steel-framed modular homes this is the place to browse if youre looking into untraditional. Plans February 12 2017 1029 pm. 09062018 The home offers 1905 square feet of living space with 3 bedrooms and 2 bathrooms across 1 story. A steel building from General Steel is the modern solution for a new home. 4040 1600 Sq Ft. The master bedroom has a large en-suite bathroom with a walk-in closet. Pics-Advertisements-in Floor Plans Metal Buildings. See Floor Plans. 37 Barndominium Floor Plans 3 Bed 1 Bath 30x40 1200 sq.
This site is an open community for users to share their favorite wallpapers on the internet, all images or pictures in this site are for personal wallpaper use only, it is stricly prohibited to use this wallpaper for commercial purposes, if you are the author and find this image is shared without your permission, please kindly raise a DMCA report Contact Us.
If you find this site convienient, please support us by sharing this posts to your preference social media accounts like Facebook, Instagram and so on or you can also bookmark this blog page with the title metal building house plans 3 bedroom by using Ctrl + D for devices a laptop with a Windows operating system or Command + D for laptops with an Apple operating system. If you use a smartphone, you can also use the drawer menu of the browser you are using. Whether it's a Windows, Mac, iOS or Android operating system, you will still be able to bookmark this website.