Your House plans l shaped homes images are available. House plans l shaped homes are a topic that is being searched for and liked by netizens today. You can Get the House plans l shaped homes files here. Find and Download all free vectors in sini. House plans l shaped homes was reported completly and detail.
If you’re looking for house plans l shaped homes pictures information related to the house plans l shaped homes interest, you have pay a visit to the ideal blog. Our site always gives you suggestions for refferencing the highest quality video and picture content, please kindly hunt and find more enlightening video content and graphics that fit your interests.
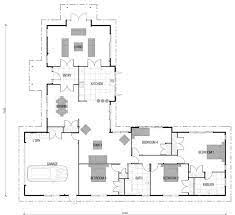
House Plans L Shaped Homes. They created these homes to fit deep-seeded needs and problems. 10 Modern House Plans Designed With 2-Bedrooms From TM Designs. Purpose of an L-Shaped House. 14102018 L Shaped House Plans 2 Story plans long low Long low to the ground and meticulously upscale this unique 3 bedroom home is an updated magnificent throwback to the California Ranch style With its low roof line asymmetrical L shaped layout and room for a backyard pool this one level contemporary home plan is a show stopper Adjacent to the lengthy. Pin On For The Home from www.pinterest.com
Images information:
Dimensions: 751 x 533
File type: jpg
All of our plans are customizable. To see more house plans try our advanced floor plan search. Our architectural designers have provided the finest in custom home design and stock house plans to the new construction market for over 30 years. 04042021 L Shaped House Plans Monster House Plans L Shaped House Plans L frame houses are a popular choice among many home buyers because of their L shape design and numerous layout options These homes combine contemporary and 27 L Shaped House Plans with Courtyard. We got information from each image that we get including set size and resolution. Architects didnt create floor plans with an L shape just because they look good.
L-shaped houses designed with big glass doors and windows add more access to light and nature and they facilitate ventilation.
Search house plans browse all plans new house plans popular home plans home styles building types custom home designs. Our L Shaped House Plans collection contains our hand picked floor plans with an L shaped layout. Although its not just about choosing the right floor plan its also a matter of. Maybe this is a good time to tell about l shaped two story house plans. Architects know that there is a real purpose to the L shaped home beyond aesthetics and more homeowners should know about it. Search house plans browse all plans new house plans popular home plans home styles building types custom home designs. Our architectural designers have provided the finest in custom home design and stock house plans to the new construction market for over 30 years. To see more house plans try our advanced floor plan search. See more ideas about house floor plans house plans house design. In fact what this L-shape provides is an incomplete outdoor room. All of our plans are customizable.
This site is an open community for users to share their favorite wallpapers on the internet, all images or pictures in this site are for personal wallpaper use only, it is stricly prohibited to use this wallpaper for commercial purposes, if you are the author and find this image is shared without your permission, please kindly raise a DMCA report Contact Us.
If you find this site beneficial, please support us by sharing this posts to your preference social media accounts like Facebook, Instagram and so on or you can also bookmark this blog page with the title house plans l shaped homes by using Ctrl + D for devices a laptop with a Windows operating system or Command + D for laptops with an Apple operating system. If you use a smartphone, you can also use the drawer menu of the browser you are using. Whether it's a Windows, Mac, iOS or Android operating system, you will still be able to bookmark this website.